重点项目key projects
首页>重点项目> 海外综合业务板块
哈国综合性职业技术学校建设项目


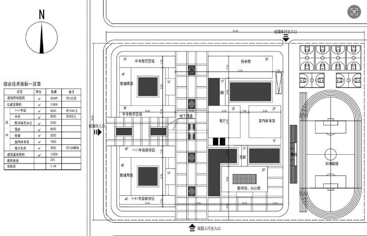
为促进哈萨克斯坦专业技术人才培养,美自然将帮助哈方于首都阿斯塔纳创办综合性职业技术学校。该校涵盖1~11年级教学区和四年制中专教学区,总招收人数约1600人。学校配套有学生宿舍、餐厅及室内外体育场。
To promote the cultivation of professional and technical talents in Kazakhstan, Midea will assist Kazakhstan in establishing a comprehensive vocational and technical school in the capital Astana. The school covers the teaching areas for grades 1-11 and the four-year vocational school teaching area, with a total enrollment of approximately 1600 students. The school is equipped with student dormitories, restaurants, and indoor and outdoor sports fields.


























欢迎关注官方微信公众号
Welcome to follow the official WeChat official account
CopyRight © 2025 安徽美自然环境科技有限公司 All Rights Reserved. 皖ICP备2025094250号-1